Apartamento T2 com terraço de 41m2 em Moreira da Maia

Porto, Maia

Apartamento T2 com terraço de 41m2 em Moreira da Maia
Voltar\Apartamento T2 com terraço de 41m2 em Moreira da Maia - Porto, Maia
Enviar imóvel a amigo
Saber mais »
captcha
Campos obrigatórios *
Seguir imóvel Receba um alerta quando existir uma Baixa de Preço
Nome
Insira o código da imagem
captcha
Código
Apartamento T2 com terraço de 41m2 em Moreira da Maia 330 000 € Ref: PS3292
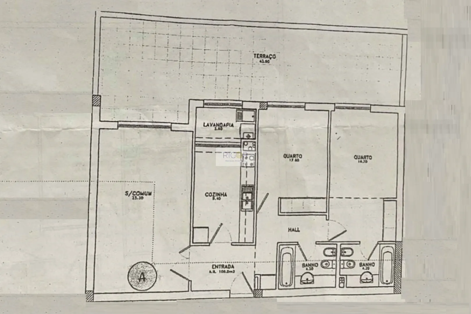
Apartamento T2 com terraço de 41m2 com todas as divisôes com acesso ao mesmo.
Imóvel com muita luminosidade.
Cozinha equipada e lavandaria, sala, hall de entrada, suite, wc de suite, quarto, wc completo, lugar de garagem e arrumos.
Aquecimento central e ar condicionado.
A localização é excelente, com todo o tipo de comércio, serviços e transportes.
Faça a sua escolha com Rigor!

-------------

As vantagens de recorrer aos nossos serviços.
A nossa equipa de consultores distingue-se das demais no sector imobiliário, quer pela sua formação única, quer pela sua abrangente experiência neste mercado, estando assim habilitados a prestar um serviço exclusivo, dedicando e direccionando todos os seus conhecimentos para necessidades individualizadas dos nossos clientes.
O que nos identifica no sector imobiliário.
Os nossos clientes, compradores ou vendedores, são auxiliados e orientados em todo o processo, quer seja de compra ou venda, com a máxima confiança e com o intuito de ir ao encontro das suas necessidades e pretensões.
Sendo um cliente comprador, a nossa empresa dispõe de consultores imobiliários focados em apresentar antecipadamente uma selectiva e cuidadosa escolha de imóveis, seleccionando as melhores localizações no mercado e elegendo as melhores propostas no que respeita à construção e acabamento dos imóveis.
A nossa empresa dispõe do serviço de intermediário de crédito vinculado, estando registada no Banco de Portugal com o nº 2835, detendo capacidades técnicas para o auxiliar no processo de financiamento, auxiliando no apoio de toda a burocracia inerente ao processo de compra e venda.
Na qualidade de cliente vendedor, a nossa empresa oferece aos nossos clientes as soluções mais eficazes no mercado digital de publicidade e marketing, dispondo de uma vasta gama de sistemas operacionais e ferramentas imprescindíveis para agilizar e promover a venda do seu imóvel, num curto período de tempo.
Como estratégia publicitária criamos uma revista própria direccionada para a divulgação das melhores oportunidades no mercado imobiliário, complementada com a divulgação através de flyers.
Toda esta estratégia na divulgação da nossa carteira de imóveis complementa uma política concentrada dos nossos objectivos, mantendo assim um padrão publicitário direccionado para o mercado vigente em cada área específica de actuação geográfica.
Consideramos como uma das mais importantes estratégias de publicidade e marketing a divulgação dos nossos imóveis na internet, por intermédio da vasta montra virtual que difunde os nossos serviços através dos nossos sites, nomeadamente www.rigor.pt e www.rigor.com.pt, e através da exportação que efectuamos para 99% dos portais imobiliários que existem online.
O que define a nossa essência.
A Mapa de Rigor – Mediação Imobiliária, Unipessoal Lda. foi criada em 2009. Desde então que o seu percurso na área da mediação imobiliária se vem demarcando pela essência em estabelecer relações duradouras com os seus clientes, valorando em cada transação comercial as necessidades intrínsecas que a mediação imobiliária impõe, quer se trate das exigências familiares, dos investidores, ou das necessidades mais peculiares dos nossos clientes.
Intervindo nas relações comerciais em nome dos nossos clientes, a nossa conduta profissional está intrinsecamente associada a padrões elevados do serviço prestado baseados na transparência, sigilo e ética profissional.
A nossa equipa de consultores, possui um carácter distintivo, que oferece uma gama diversificada de serviços de qualidade aos nossos clientes, proporcionado um serviço cada vez mais inovador garantindo todo o acompanhamento na seleção do imóvel pretendido, compra, venda ou arrendamento, sendo devidamente apoiados através do nosso departamento jurídico.
A Mapa de Rigor – Mediação Imobiliária, Unipessoal Lda. mantém o zelo, prestígio e aperfeiçoamento das técnicas exigíveis nas transacções imobiliárias, destacando-se no sector pelos altos padrões de qualidade, sendo líder no mercado global de fornecimento de serviços de mediação imobiliária.
2 Quartos
2 Casas de Banho
1 Garagem
91,87 m² Área Útil
139,97 m² Área Bruta
C
Tipo de Imóvel Apartamento
Tipologia 2 Quartos
Objetivo Venda
Estado Usado
Preço 330 000 €
Ano Construção N/D
País Portugal
Distrito Porto
Concelho Maia
Freguesia Moreira
Zona N/D
Interessado no imóvel?
Data
Hora
Nome
Contacto
Mensagem
captcha
Código
Características Gerais
Gerais
  •  
Divisões
Divisões Área Pavimento Paredes Tectos Observações
 
Meio Envolvente
  •  
Facilidades
  •  
Domótica
  •  
Energias Renováveis
  •  
Veja também
  • Apartamento T2 com terraço de 41m2 em Moreira da Maia
  • Apartamento T2 com terraço de 41m2 em Moreira da Maia
  • Apartamento T2 com terraço de 41m2 em Moreira da Maia
  • Apartamento T2 com terraço de 41m2 em Moreira da Maia
  • Apartamento T2 com terraço de 41m2 em Moreira da Maia
Apartamento T2 com terraço de 41m2 em Moreira da Maia
2
2
1
139,97 m² A. Bruta
91,87 m² A. Útil
Contactar
  • Apartamento T2 novo com varanda na Cidade da Maia
  • Apartamento T2 novo com varanda na Cidade da Maia
  • Apartamento T2 novo com varanda na Cidade da Maia
  • Apartamento T2 novo com varanda na Cidade da Maia
  • Apartamento T2 novo com varanda na Cidade da Maia
Apartamento T2 novo com varanda na Cidade da Maia
2
2
1
121,2 m² A. Útil
Contactar
  • Apartamento To com arrumo em construção em Pedrouços
  • Apartamento To com arrumo em construção em Pedrouços
  • Apartamento To com arrumo em construção em Pedrouços
  • Apartamento To com arrumo em construção em Pedrouços
  • Apartamento To com arrumo em construção em Pedrouços
Apartamento To com arrumo em construção em Pedrouços
38,6 m² A. Bruta
37 m² A. Útil
Contactar
Estamos disponíveis para o ajudar Pretendo ser contactado
Data
Hora
Nome
Contacto
Mensagem
captcha
Código
O que é a pesquisa responsável
Esta pesquisa permite obter resultados mais ajustados à sua disponibilidade financeira.